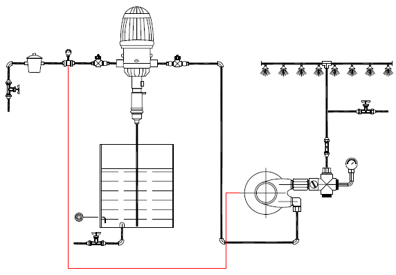
自來水經由球閥、上水電磁閥到達機械式自動比例泵,藥液按照一定比例匯入自動比例泵,混合完的工做液經由高壓液泵送入霧化噴嘴進行高壓霧化。將混合液體精細霧化成直徑30-50um液滴,利用植物液化學力、范德法力、液體表面張力等物理的、化學的作用力,去除空氣中的惡臭污染物,本設備還可以用于紡織廠、卷煙廠、賓館等大型工商業場所加濕使用。
——自來水經由球閥、上水電磁閥到達機械式自動比例泵,藥液按照一定比例匯入自動比例泵,混合完的工做液經由高壓液泵送入霧化噴嘴進行高壓霧化。將混合液體精細霧化成直徑30-50um液滴,利用植物液化學力、范德法力、液體表面張力等物理的、化學的作用力,去除空氣中的惡臭污染物,本設備還可以用于紡織廠、卷煙廠、賓館等大型工商業場所加濕使用。
——■思飛植物液除臭機工作流程
自來水經由球閥、上水電磁閥到達機械式自動比例泵,藥液按照一定比例匯入自動比例泵,混合完的工做液經由高壓液泵送入霧化噴嘴進行高壓霧化。

■思飛植物液除臭機性能特點:
◆思飛植物液除臭機機箱材質:Q235/SS304/ss316多種材質可選,滿足客戶防腐要求。
◆思飛植物液除臭機加藥裝置:自動機械式比例泵,節能、易操作、精度高,故障率降低,手動加工作液體設備無此配置。
◆高壓液泵:進口高壓柱塞泵,無故障連續運行時間8000h。
◆故障報警:設備水泵故障自動報警。
◆藥箱液位計:浮球開關和壓力變送器兩種可選,滿足客戶多方位要求,液位低時報警。
◆停水報警:管道式壓力開關,自來水停水時自動報警,停機保護水泵
◆思飛植物液除臭機控制模式:繼電器、PLC+文本、PLC+觸摸屏,三種控制模式可選,采用PLC智能控制時可提供多種通信協議。可選手動與自動一體化控制,冗余的控制模式保證了設備更長的無故障運行時間。
◆思飛植物液除臭機工作壓力:45-75kg/cm2
◆霧粒度:3-15um,很好的滿足客戶除臭、加濕需求。
◆噴淋管線:高壓PE管和無縫不銹鋼管兩種可選。
◆噴嘴:精細霧化噴嘴,黃銅和不銹鋼兩種可選。
■思飛植物液除臭機技術參數:

公司產品主要有兩大部分組成,一部分是以新風系統,濕膜加濕器,整體樓宇凈化系列產品,如中央空調電子空氣凈化器為主的室內環境治理產品;另一部分是以工